Disaster Relief Center

Tools
Rhino 7, Adobe Photoshop, Illustrator, InDesign

Context
The Disaster Relief Shelter Center project is dedicated to catering to the user needs of individuals in the Uptown neighborhood of New Orleans, Louisiana, in the aftermath of a disaster. The concept revolves around residents of Uptown NOLA utilizing the shelter to varying extents following a disaster. The primary objective of the project is to prioritize addressing diverse user needs while maintaining the adaptability of the structure. It is designed to offer maximum flexibility, serving as both a shelter and a storage space during non-disaster periods.

User Research

Meet Alex & Avery

Alex and Avery are two residents of the Uptown neighborhood in New Orleans. While they live in the same neighborhood, the two of them live very different lives within their work and personal lives on a day to day basis.

Programs

Limitations: The shelter will be situated in a library annex with a predetermined and established building structure. The exterior of the building is already defined and cannot be altered. Furthermore, the location of the bathroom on the plan is fixed, and a functional kitchen bar adjacent to the bathroom is already in place. These existing elements must be considered and cannot be relocated or modified, necessitating that the diagram adhere to these constraints.

Necessary Programs: cafeteria, community space, recreational center, sleeping quarters, medical space, information + tech hub.

Additional Programs: private space

Iteration 1

Floor + Furniture Plan

In the initial design phase, my emphasis was on encouraging private and interconnected areas while striving to maintain maximum flexibility within the space. I organized the program spaces into 'private zones,' predominantly necessitating built-in walls, such as the sleeping quarters. Meanwhile, communal spaces were designed to seamlessly blend into each other or feature adaptable makeshift walls. The plan incorporates strategic elements, such as using furniture like bookshelves in the recreational space, to create divisions and maintain flexibility.

community space + cafeteria

community + recreational space

Perspective Drafts & Ideation: Beginning to conceptualize the space and different design requirements for each space

recreational space

cafeteria

Iteration 2 – Final Concept

User Journey: Avery & her family during a disaster

The user experience centers around Avery and her family as they navigate a disaster in Uptown NOLA, culminating in their utilization of the disaster relief center.

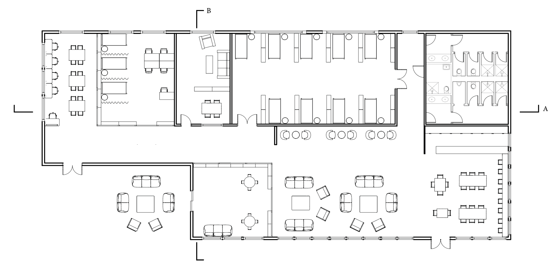
Revised Floor + Furniture Plan

  • Eliminated the protrusion in both the private and medical spaces. Initially, the intention was to form a recess with the sleeping space wall to accommodate extra seating in the community area, but it turned out to be an awkward element. The revised plan involves a straight hallway with no protrusion, and a partition wall has been introduced to create the additional community space seating area.

  • Recreational Space: Additional sliding exterior door to allow the recreational activities to continue outside.

Flexibility & Adaptability

  • Sleeping Quarters: Embracing Flexibility. Every furniture piece within each designated sleeping area is designed to be portable and adaptable, enabling users to personalize their space. The user personas, such as Alex and Avery, underscore the diverse range of individuals utilizing the area, whether alone or as part of a family. This system not only provides privacy but also allows individuals to uniquely define and configure their personal space. The portable divider bookshelves additionally provide storage.

  • Cafeteria: A space for everyone. Whether you are staying in the shelter alone or with a family, there is a place to sit comfortably. The counter by the window is designed for people who want time to themselves, while there is a variety of table sizes for groups.

  • Design Choices: Partitions in areas where privacy is not needed. Items like bookshelves function as makeshift walls, while partition walls subtly delineate spaces throughout.

recreational space

cafeteria

community space

Design Decisions & Renderings

  • Ceiling heights & defining spaces: Within the shelter, the community space stands out as the most expansive and central area, featuring the tallest ceiling. In contrast, the ceilings in all other spaces are intentionally lowered. This design choice serves to define and separate areas that are open and not separated by walls, as seen in spaces like the cafeteria.

  • Adaptable Walls: Various areas incorporate partition walls and utilize bookshelves as dividers. In the recreational space and the divider between the info+tech hub and the medical area, windows are introduced above the bookshelf. This serves two purposes: maintaining higher ceilings than the bookshelf and enhancing natural light penetration.

information + technology hub

Materiality Inspiration

Section Drawings (1/8” = 1’-0” scale)

Previous
Previous

Streetcar Pavilion

Next
Next

The Violet Leaf Lamp